00件
最近見た物件
00件
検討リスト
北見市の土地・中古住宅の購入や買取|MOCO不動産 > (店舗事務所)地域から探す > 北見市 > 北見市北4条投資用物件 > 物件詳細
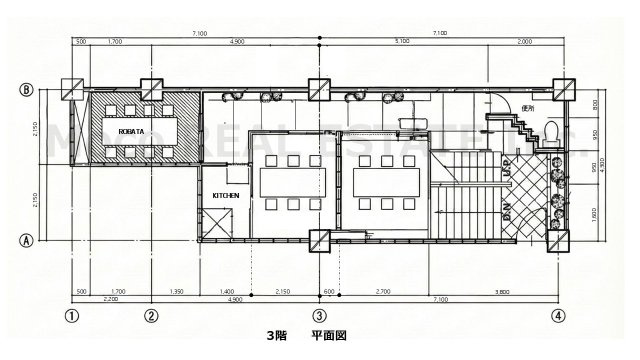
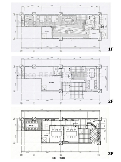
北見市の街中に位置する、立地条件の良い飲食店向け物件です。過去に内装リフォーム済みのため、店内はそのまま利用可能。厨房設備や調理器具、家具類もすべて揃っており、引き渡し後すぐに営業を開始できます。初期費用を抑えて開業したい方や、スピーディーに店舗運営を始めたい方におすすめの、魅力あふれる物件です。











(※元利均等方式 金利5.00%まで ※返済年数5~50年まで入力できます)
(※ボーナスは年2回で計算しています。1000万円まで入力できます)
(※物件購入時、その他諸費用が発生する場合がございます)
| 所在地 | 北海道北見市北四条西3丁目2-54 | ||
|---|---|---|---|
| 交通 | |||
| 間取り/詳細 | - | 建物面積(坪数) | -(-) |
| 価格 | 2,000万円 | 管理費 | - |
| 利回り | -/- | ||
| 修繕積立金 | - | 駐車場/月額料金 | -/- |
| 土地権利 | 所有権 | 国土法届出要否 | 不要 |
| 土地面積(坪数) | -(-) | 私道負担面積/セットバック | -/無 |
| 用途地域 | - | 地目/地勢 | 宅地/- |
| 種別/構造 | 店舗/鉄骨鉄筋コンクリート | 向き | - |
| 築年月(築年数) | 1965年 11月 (築60年) | ||
| 所在階/階建 | -/4階建 | 棟総戸数/販売戸数 | -/- |
| 管理組合有無 | - | 管理形態 | - |
| 管理員の勤務形態 | - | 管理会社 | - |
| 取引態様 | 専属専任媒介 | 現況/引渡し | -/相談 |
| 物件番号 | 100161196 | 取引条件の有効期限 | 2026年04月28日 |
| 設備条件 |
|
||
| 備考 | 上記記入項目が現況と異なる場合がございます。現況と異なる場合には現況を優先させていただきます。詳細は弊社までお気軽にお問い合わせください。 | ||
| 取扱会社 |
|
||
| QRコード |
このQRコードを読み取ることで、スマホでも物件情報を確認できます。 |
||
※地図上に表示される物件の位置は付近住所に所在することを表すものであり、実際の物件所在地とは異なる場合がございます。
北見市の町名から探す
北見市にある駅から探す
北見市北4条投資用物件周辺の駅から探す